+32 4 221 21 21

Appartement à vendre à EMBOURG

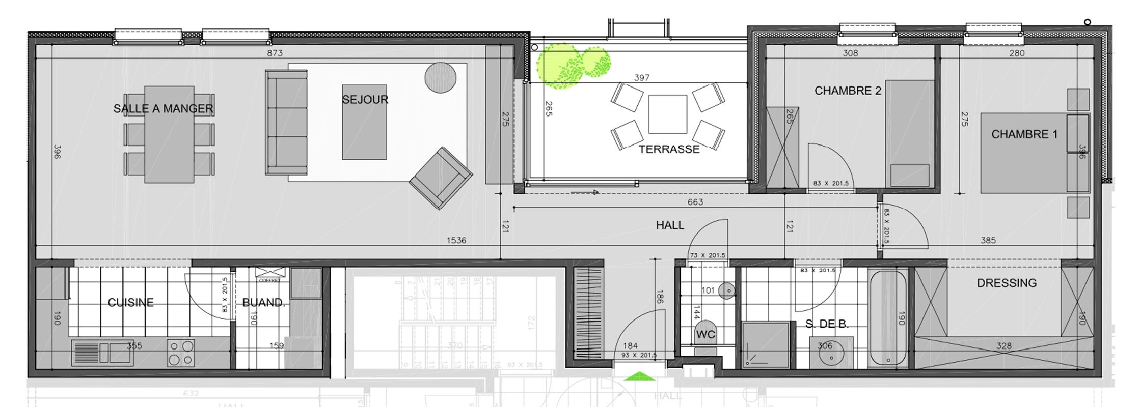
A proximité du centre d'Embourg, au rez-de-chaussée de l'immeuble, très bel appartement d'une superficie habitable de +/- 100m2. Il se compose : d'un hall d'entrée avec placards, d'un wc indépendant, d'une cuisine équipée ouverte sur un living, d'une buanderie, de deux chambres dont une avec dressing et d'une salle de bains. Très bel appartement avec spacieuse terrasse et jardin privatif. Cave privative, emplacement de parking extérieur sécurisé. Chauffage sol avec pompe à chaleur, panneaux photovoltaïques privatifs, adoucisseur d'eau privatif et compteurs individuels pour l'électricité et l'eau. Appartement actuellement occupé (bail en cours). Stores sur mesure et luminaires de qualité font partie de la vente. Electricité conforme jusqu'au 16/01/2038. Renseignements et visites au 04/221.21.21.
Classe énergétique Énergie spécifique Énergie totale Émission de CO2 PEB No.
B 92kWh/m².an 11209kWh.an / 20240221009828

Informations générales

  • Type de bien Appartement
  • Sous-catégorie Appartement
  • Disponibilité en fonct. du locataire
  • Etat excellent état
  • Sous régime TVA Non
  • Année de construction 2013
  • Meublé Non
  • Prix de vente 345000,00 €

Informations sur l'extérieur

  • Nombre de garage(s) 0
  • Parking extérieur Oui
  • Nombre de parking extérieur 1
  • Jardin 1
  • Superficie 138,78 m²
  • Terrasse 1
  • Surface terrasse 1 9,85 m²
  • Orientation de la terrasse 1 Sud

Informations sur l'intérieur

  • Surface habitable 93,38 m²
  • Surface de la salle de séjour 34,57 m²
  • Cuisine Oui
  • Type de cuisine Entièrement équipée
  • Nombre de chambres 2
  • Nombre de salle de bain 1
  • Alarme Non
  • Double vitrage Oui
  • Type d'énergie du chauffage Chauffage par le sol

Informations financières

  • Revenu cadastral 1175,00 €

Inscription à la newsletter

Inscrivez-vous à notre newsletter pour recevoir les dernières nouvelles de Bourse Immobilière ainsi que tous nos biens à vendre en exclusivité.

Évaluation gratuite